6031 Cromdale Dr, Dublin, OH 43017
Toggle Navigation
Images
3D Tour
Videos
Floor Plans
Map
6031 Cromdale Dr
Dublin, OH 43017
Scroll to Content
Images
Slideshow
Photo Grid
Hide
Previous
Next
Show more
3D Tour
Videos
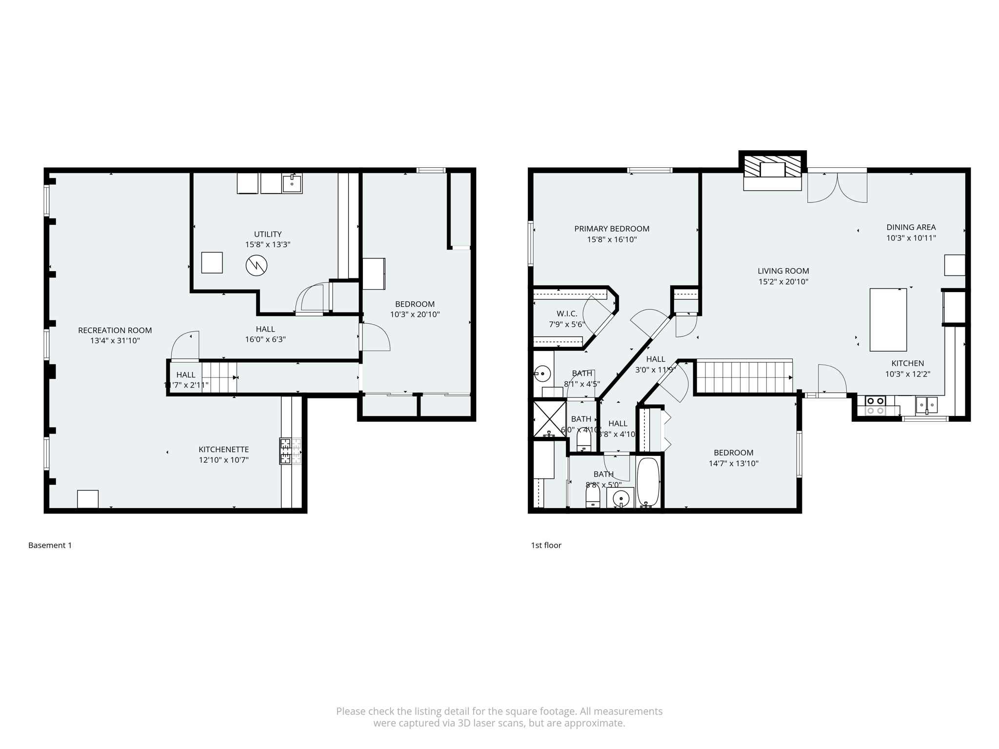
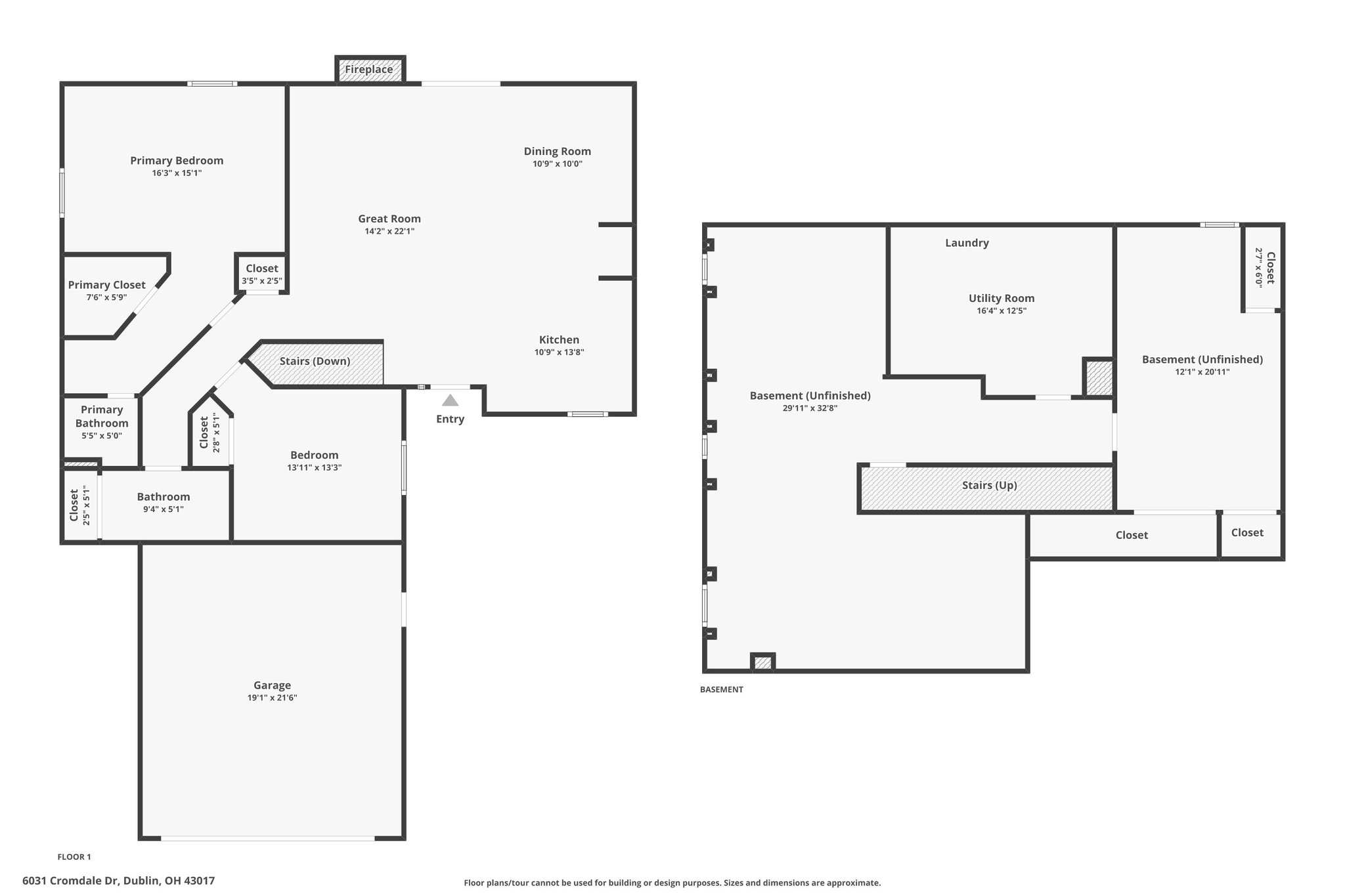
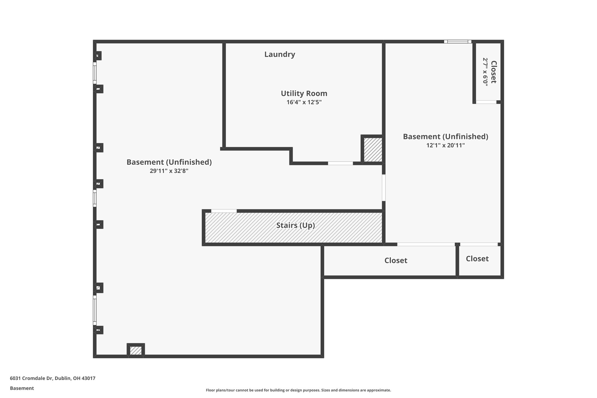
Floor Plans
Slideshow
Photo Grid
Hide
Previous
Next